免费会员?span style="font-size:1.5em;color:#f21">7平/div> 访问野 187356 网址:xiechang.cnreagent.com 在线留言
产品搜索
泵阀 >> 电磁脉冲阀
防爆直角式电磁脉冲阀DCF-F-Z-40S
防爆直角式电磁脉冲阀DCF-F-Z-40S图片
品牌: 协昌
产地: 苏州
索取资料及报件/span>
品牌: 协昌
产地: 苏州
设备种类: 直角式电磁脉冲阀
产品介绍

\

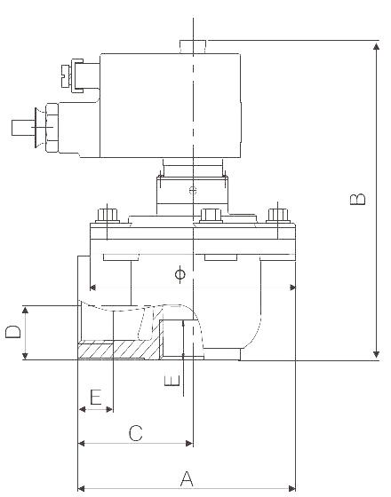
电磁脉冲阀型号 DCF-F-Z-40S
φ 112
A 131
B 180
C 75
D 34
E 28

规格型号:DCF-F-00 AC220V
防爆标志:EX mb ⅡC T4Gb/Ex mD 21 T130
产品标准:Q/320500 HSXC 007-2015
该产品经国家防爆电气产品质量监督检验中心检验合格并取得了防 爆合格证,其防爆合格证编号为CNEx15.2609X 确认符合下列标准9br/>GB3836.1-2010《爆炸性环境第1部分:设备通用要求《br/> GB3836.9-2006《爆炸性气体环境用电气设备 ?部分:浇封型“m”《br/> GB12476.1-2013《可燃性粉尘环境用电气设备 ?部分:通用要求《br/> GB12476.1-2010《可燃性粉尘环境用电气设备 ?部分:浇封保护型“mD”《/span>

相关产品
Baidu
map